Digita indirizzo, città o provincia
Vicino a dove ti trovi
Seleziona zona su mappa
Disegna area su mappa
Seleziona una o più zone
ZoneVedi zone su mappa
Mostra filtri
Salva ricerca
Abbiamo trovato 1199 risultati per:

1/13
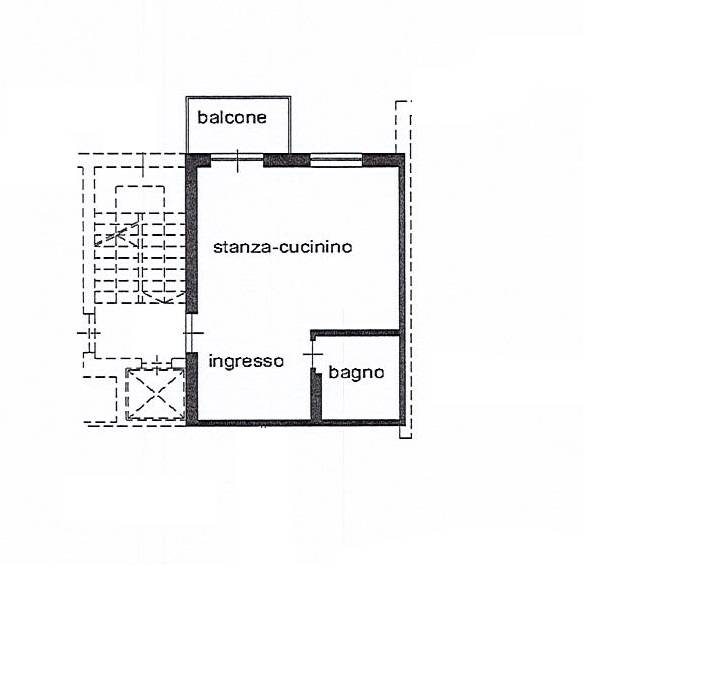
Sarnonico - Appartamento 2 stanze + Cucina
180.000 €
SARNONICO, VAL DI NON (TN). Appartamento composto da soggiorno con cottura, due camere, servizio finestrato, sottotetto accessibile dal soggiorno, balcone, cantina e garage. Stupendo panorama, soleggiato ed in buone condizioni. Altre proposte le potete trovare visitando il sito www.immobiliaregiglio.com, la pagina fb o venendo a trovarci direttamente in agenzia in Viale Venezia 69 all'angolo con Viale Druso a Bolzano (BZ), dove potrete visionare tre ampie vetrine di annunci immobiliari costantemente aggiornati. L'Agenzia Immobiliare Giglio è inoltre a vostra disposizione per fornire ogni tipo di consulenza e informazione.




1/9
Ufficio di 45 mq a Bolzano - Bozen
Bolzano
120.000 €
Spazio uso ufficio/studio in Via Cadorna – categoria catastale A/10<br><br>In vendita in Via Cadorna, zona residenziale tranquilla e ben servita di Bolzano, proponiamo un raffinato spazio multiuso accatastato in categoria A/10 – Ufficio o Studio Privato, ideale per chi cerca un ambiente professionale ma anche accogliente e ben attrezzato.<br><br>L’immobile si trova al piano seminterrato, in un contesto ordinato e ben mantenuto, ed è stato curato nei dettagli con finiture moderne e arredi su misura che lo rendono subito fruibile.<br><br><br> Caratteristiche:<br> • Open-space con zona studio/lavoro e zona relax<br> • Cucina attrezzata con piano cottura, lavello, frigorifero e armadiatura<br> • Bagno con doccia<br> • Ampie finestre alte che garantiscono luce naturale e aerazione<br> • Arredamento completo incluso, di ottima qualità<br> • Impianto di riscaldamento centralizzato<br> • Accesso indipendente dal vano scala condominiale<br><br><br> Utilizzi ideali:<br><br>- Studio privato (architetto, consulente, terapista, artista)<br>- Hobby-Raum o laboratorio personale<br>- Spazio per attività professionali non aperte al pubblico<br>- Perfetto anche come ambiente per ospitare temporaneamente collaboratori, stagisti o ospiti occasionali, grazie alla presenza di bagno e cucina, pur restando una unità non residenziale<br>- Interessante anche come piccolo investimento a reddito o per professionisti che desiderano una sede comoda e autonoma<br><br><br>Nota importante:<br><br>L’immobile è accatastato in categoria A/10 – non può essere venduto, locato o utilizzato come abitazione principale o residenza anagrafica. Tuttavia, per la sua conformazione interna e le dotazioni presenti, può offrire massima versatilità di utilizzo, anche in forma integrativa rispetto ad altre unità residenziali o lavorative.<br><br><br> Punti di forza:<br> • Nessun lavoro da eseguire, pronto all’uso<br> • Arredato e già organizzato in modo funzionale<br> • Posizione strategica, a pochi minuti dal centro<br> • Ideale per professionisti, creativi, artigiani o investitori<br><br>Per ulteriori informazioni, planimetrie o per fissare una visita, contattaci senza impegno.




1/7
Altro di 45 mq a Ora - Auer
Ora
89.000 €
Locale commerciale con alto passaggio pedonale in vendita/locazione a Ora (BZ).<br><br>Il locale commerciale si trova nel centro commerciale 'Auracom' di Ora.<br><br>Proprietà composta da:<br><br>Piano terra: negozio, anti WC e WC.<br><br>Piano interrato: cantina.<br><br><br>Ubicazione e contesto di questo Immobile:<br><br><strong style="color: rgb(24, 25, 26);">Ora</strong> è un <a href="https://it.wikipedia.org/wiki/Comune_(Italia)" target="_blank" style="color: rgb(9, 47, 157);">comune italiano</a> di 3 888 abitanti della <a href="https://it.wikipedia.org/wiki/Provincia_autonoma_di_Bolzano" target="_blank" style="color: rgb(9, 47, 157);">provincia autonoma di Bolzano</a> in <a href="https://it.wikipedia.org/wiki/Trentino-Alto_Adige" target="_blank" style="color: rgb(9, 47, 157);">Trentino-Alto Adige</a>. È inoltre un <a href="https://it.wikipedia.org/wiki/Comune_mercato" target="_blank" style="color: rgb(9, 47, 157);">comune mercato</a>.<br>Situata in fondovalle, sulla sinistra orografica dell'<a href="https://it.wikipedia.org/wiki/Adige" target="_blank">Adige</a>, presso la confluenza del <a href="https://it.wikipedia.org/wiki/Rio_Nero" target="_blank">rio Nero</a>, circa 20 km a sud di <a href="https://it.wikipedia.org/wiki/Bolzano" target="_blank">Bolzano</a>.<br>Negli ultimi anni il comune di Ora ha visto un forte incremento del numero di abitanti dovuto all'aumento delle industrie, il che ha comportato un notevole cambiamento nell'aspetto del comune stesso, che precedentemente basava il proprio sviluppo sulla <a href="https://it.wikipedia.org/wiki/Frutticoltura" target="_blank" style="color: rgb(9, 47, 157);">frutticoltura</a>.<br><br><br>Compenso di mediazione:<br><br>Il mediatore ha diritto alla provvigione, se l'affare è concluso per effetto del suo intervento.<br><br>Provvigione del 3 % (tre per cento) più IVA sul prezzo di vendita.<br><br>Provvigione del 120 % (centoventi per cento) più IVA sul tasso di locazione mensile.<br><br>Il diritto del mediatore al compenso sorge nel momento in cui l'affare è concluso e verra' corrisposto dall'acquirente al mediatore entro 30 giorni dalla data di accettazione della proposta di acquisto oppure dalla sottoscrizione del contratto preliminare.<br><br>Il nostro intento è di mettere a disposizione sul presente sito internet informazioni corrette e complete. Tuttavia non assumiamo nessuna responsabilità ne diamo garanzia per l'attualità, la correttezza e la completezza delle informazioni fornite. Planimetrie bidimensionali e rendering tridimensionali sono meramente figurative e non sempre in rapporto e/o veritiere. Ci riserviamo il diritto di effettuare senza preavviso delle modifiche o integrazioni alle informazioni fornite.




1/9
Altro di 218 mq a Bolzano - Bozen
Centro Città
450.000 €
Il locale commerciale si trova nel centro storico di Bolzano e si sviluppa su due livelli, piano terra e piano interrato. L’immobile presenta una distribuzione funzionale degli spazi ed è adatto a diverse tipologie di utilizzo commerciale.<br><br>Al piano terra si trova l’area principale con accesso diretto dall’esterno. La disposizione aperta degli spazi, le travi in legno a vista e la luce naturale caratterizzano l’ambiente. Su questo livello è presente un WC.<br><br>Il piano interrato è collegato internamente e comprende un archivio e un locale di deposito, utilizzabili come spazi di supporto o magazzino.<br><br>Grazie alla posizione centrale nel centro storico di Bolzano e alla distribuzione su due livelli, il locale è adatto ad attività di servizio o ad utilizzi commerciali specializzati.<br><br><br>Ubicazione e contesto di questo Immobile:<br><br>L’immobile si trova in Via dei Vanga, nel centro storico di Bolzano, a breve distanza a piedi dai Portici e dal centro cittadino. La posizione è centrale e allo stesso tempo esterna alle aree a più alta concentrazione turistica.<br><br>Il contesto circostante è caratterizzato da piccole attività, uffici ed esercizi commerciali locali, frequentati prevalentemente da residenti e clientela abituale. L’ubicazione risulta pertanto idonea per attività di servizio, uffici o commercio specializzato.<br><br>I principali servizi, i mezzi di trasporto pubblico e le possibilità di parcheggio nelle vicinanze sono facilmente raggiungibili a piedi, garantendo una buona accessibilità. L’immobile non si trova su una via commerciale primaria.<br><br>Nel complesso, si tratta di una posizione nel centro storico di Bolzano che può risultare interessante per acquirenti alla ricerca di un immobile con possibili utilizzi flessibili in ambito urbano centrale.<br><br><br>Compenso di mediazione:<br> <br>Il mediatore ha diritto alla provvigione, se l'affare è concluso per effetto del suo intervento.<br><br>Provvigione del 3,5 % (tre virgola cinque per cento) più IVA sul prezzo di <strong style="color: rgb(50, 50, 50); background-color: rgb(249, 249, 249);">Vendita</strong>.<br><br>Il diritto del mediatore al compenso sorge nel momento in cui l'affare è concluso e verra' corrisposto dall'acquirente al mediatore entro 30 giorni dalla data di accettazione della proposta di acquisto oppure dalla sottoscrizione del contratto preliminare.<br>Il nostro intento è di mettere a disposizione sul presente sito internet informazioni corrette e complete. Tuttavia non assumiamo nessuna responsabilità ne diamo garanzia per l'attualità, la correttezza e la completezza delle informazioni fornite. Planimetrie bidimensionali e rendering tridimensionali sono meramente figurative e non sempre in rapporto e/o veritiere. Ci riserviamo il diritto di effettuare senza preavviso delle modifiche o integrazioni alle informazioni fornite.




1/10
CENTRO STORICO - GALLERIA VINTLER
380.000 €
Scopri le Opportunità Uniche nel Centro Storico di Bolzano! Proponiamo in vendita diversi negozi e uffici situati nella prestigiosa Galleria Vintler, nel cuore pulsante del centro storico di Bolzano. Gli immobili, di varie metrature, le condizioni sono come da origine e necessitano di una ristrutturazione, ideali per le vostre attività commerciali o professionali. Caratteristiche principali: Posizione centrale e strategica nella Galleria Vintler Varie metrature disponibili per soddisfare ogni esigenza Prezzi variabili in base alle dimensioni scelte Possibilità magazzino al piano interrato Subito disponibili! Non perdere l'occasione di avviare o trasferire la tua attività in una delle zone più prestigiose e frequentate di Bolzano. Per maggiori informazioni o per prenotare una visita, contattaci subito. Ti aspettiamo! Per ulteriori informazioni su questi negozi/uffici in vendita a Bolzano potete contattare direttamente lagenzia BOLZANO PROGETTO IMMOBILIARE al numero 0471/979737 o passare a trovarci presso i nostri uffici dalle ore 8:30 alle 12:30 e dalle 15:00 alle 19:00 in Via Duca D'Aosta 55, vi aspettiamo per fornirvi ulteriori informazioni ed eventuali alternative allimmobile di vostro interesse. L agenzia BOLZANO PROGETTO IMMOBILIARE dal 1992 offre un servizio per la compra-vendita di immobili serio ed affidabile, offriamo un servizio per seguire passo passo i nostri clienti , dalla valutazione dellimmobile da vendere fino allespletamento di tutte le pratiche burocratiche. La pubblicità viene seguita attentamente dal nostro ufficio marketing, siamo presenti in numerosi siti internet con annunci giornalmente aggiornanti, pubblichiamo gli immobili su diversi giornali di settore e disponiamo di tre grandi bacheche di cui una in zona Oltrisarco. Il cliente che sceglie lagenzia BOLZANO PROGETTO IMMOBILIARE è una persona che sceglie la serietà e laffidabilità che derivano da anni di esperienza nel campo immobiliare e che sceglie un clima familiare ed amichevole dove potere sentirsi libero di affidarsi a dei professionisti del settore.




1/9
CENTRO STORICO - GALLERIA VINTLER
130.000 €
Scopri le Opportunità Uniche nel Centro Storico di Bolzano! Proponiamo in vendita diversi negozi e uffici situati nella prestigiosa Galleria Vintler, nel cuore pulsante del centro storico di Bolzano. Gli immobili, di varie metrature, sono stati completamente ristrutturati a nuovo, garantendo ambienti moderni e funzionali ideali per le vostre attività commerciali o professionali. Caratteristiche principali: Posizione centrale e strategica nella Galleria Vintler Varie metrature disponibili per soddisfare ogni esigenza Completamente ristrutturati con finiture di alta qualità Casaclima "A" Prezzi variabili in base alle dimensioni scelte Possibilità magazzino al piano interrato Subito disponibili! Non perdere l'occasione di avviare o trasferire la tua attività in una delle zone più prestigiose e frequentate di Bolzano. Per maggiori informazioni o per prenotare una visita, contattaci subito. Ti aspettiamo! Per ulteriori informazioni su questi negozi/uffici in vendita a Bolzano potete contattare direttamente lagenzia BOLZANO PROGETTO IMMOBILIARE al numero 0471/979737 o passare a trovarci presso i nostri uffici dalle ore 8:30 alle 12:30 e dalle 15:00 alle 19:00 in Via Duca D'Aosta 55, vi aspettiamo per fornirvi ulteriori informazioni ed eventuali alternative allimmobile di vostro interesse. L agenzia BOLZANO PROGETTO IMMOBILIARE dal 1992 offre un servizio per la compra-vendita di immobili serio ed affidabile, offriamo un servizio per seguire passo passo i nostri clienti , dalla valutazione dellimmobile da vendere fino allespletamento di tutte le pratiche burocratiche. La pubblicità viene seguita attentamente dal nostro ufficio marketing, siamo presenti in numerosi siti internet con annunci giornalmente aggiornanti, pubblichiamo gli immobili su diversi giornali di settore e disponiamo di tre grandi bacheche di cui una in zona Oltrisarco. Il cliente che sceglie lagenzia BOLZANO PROGETTO IMMOBILIARE è una persona che sceglie la serietà e laffidabilità che derivano da anni di esperienza nel campo immobiliare e che sceglie un clima familiare ed amichevole dove potere sentirsi libero di affidarsi a dei professionisti del settore.




Nuovo Annuncio
1/14
Appartamento di 44 mq a Bolzano - Bozen
Bolzano
210.000 €
Ideale per investimento.<br> Vendesi grazioso monolocale sito in via Capri al terzo piano di un condominio di 4 piani. L’appartamento è in buone condizioni e ha un balcone con affaccio sui vigneti. Riscaldamento centralizzato con contacalorie, produzione di acqua calda con boiler. <br> Il condominio è in buon stato manutentivo. <br> Cortile interno con posti auto non assegnati. <br> subito disponibile




1/7
Appartamento di 120 mq a Trento
Trento
417.000 €
TRENTO - ZONA TRIBUNALE - GE-001-BIS: vendesi luminoso APPARTAMENTO, RISTRUTTURATO a NUOVO, 120 MQ, 1. PIANO con ASCENSORE, composto da ampio SOGGIORNO con CUCINA a VISTA e TERRAZZA di 30 MQ, STANZA MATRIMONIALE, STANZA DOPPIA, DISBRIGHI e DOPPI SERVIZI. <br>RISCALDAMENTO CENTRALIZZATO con CONTACALORIE.<br><br>Comprensivo di CANTINA.<br><br>Per ulteriori informazioni e sopralluogo:<br>PERSONAL RE AGENT ® - Cell. 334 800 700 5<br><br>A.P.E. ‘'-" - EPgl: --,-- KWm2a<br>Euro 417.000 - ID_GE-001-BIS<br><br>Possibilita’ MUTUO 100% + Consulenza Family Broker Finanziario GRATUITA!<br><br>PERSONAL RE ® - Consulenza Immobiliare + Home Staging<br>info@personalre.it | www.personalre.it | @personalre<br>TRENTO | Via Galileo Galilei 9-11 | TN<br>BOLZANO | Via Carducci 13 A | BZ<br>VALLE LAGHI - CAVEDINE | Viale Degasperi 12 | TN




1/8
BORGO VALSUGANA
170.000 €
TABACCHERIA - EDICOLA cessione senza mura Cedesi attività ben avviata di tabaccheria/edicola a Borgo Valsugana situata presso il Centro commerciale "Le valli". Vi proponiamo un'attività commerciale in posizione strategica, facilmente raggiugibile e ben servita da parcheggio. Questa tabaccheria non è solo rivendita tabacchi e giornali; è unico store autorizzato in zona di Ploom (sigaretta e tabacco riscaldato), fornisce servizi di pagamento PagoPa, bollettini premarcati, vallori bollati, ricariche telefoniche, servizi PayTV, punto ritiro Amazon e PrimaEdicola. Rivendita caffè in grani e macinato al momento, capsule compatibili e infusi sfusi. Gratta e vinci e possibilità di ampliare il business con giochi (Lottomatica e Superenalotto). Il locale ha una superficie complessiva di 65 mq, sono compresi nel prezzo anche gli arredi e le attrezzature professionali. Viene garantita consulenza e affiancamento nella fase di transizione a supporto dell'avviamento. Desideri avere maggiori informazioni? Contattaci al 0461 753406 o inoltraci un'email all'indirizzo info@immobiliaregestihaus.it!!




1/10
Appartamento di 34 mq a Bolzano - Bozen
Centro Città
190.000 €
BOLZANO: Proponiamo in vendita grazioso ed ampio Monolocale in Via Rencio al 2 piano. Immobile luminoso e completamente ristrutturato nel 2020. Composto da zona giorno con angolo cottura, una camera ed un bagno. A pochi passi dal centro, in zona ben servita. Ideale anche per investimento ! Ci occupiamo di Lei, ResidenceImmo è la Sua agenzia immobiliare. www.residenceimmo.it<br>***<br>BOZEN: Wir bieten zum Verkauf eine schöne und große Ein Zimmer Wohnung in der Rentscher Straße, im 2. Stock an. Helle und komplett renovierte Immobilie im Jahr 2020. Bestehend aus einem Wohnbereich mit Kochnische, einem Schlafzimmer und einem Badezimmer. Ein paar Schritte vom Zentrum entfernt, in einer gut erschlossenen Gegend. Ideal auch als Kapitalanlage! Wir kümmern uns um Sie, ResidenceImmo ist Ihre Immobilienagentur. www.residenceimmo.it<br>***




1/11
Appartamento di 76 mq a Bolzano - Bozen
Centro Città
360.000 €
BOLZANO - CENTRAL DISTRICT- in vendita bilocale nuovo con terrazza in casa-clima "A" in posizione molto centrale in un contesto molto curato, destinato a guadagnare di valore con le persone che ne abitano nel tempo. In zona servita di Bolzano, viene proposto in ottima qualità costruttiva secondo le regole casa-clima "A" per ottime prestazioni energetiche sia invernale che estive e benessere degli inquilini. I tagli e le finiture sono molto ben studiate e tra l'altro comprendono quanto segue: riscaldamento a pavimento, finestre insonorozzate con tapparelle elettriche, pavimenti in legno nelle stanze e ceramica in cucina e nei bagni, impianto tv e satellitare condominiale, videocitofono, acqua in giardino e sui terrazzi, porte di sicurezza esterne e per ogni appartamento, ventilazione controllata con recupero del calore, e sistema di raffrescamento estivo, ascensore ecc. Ogni appartamento è compreso di cantina e sono disponibili box garage di varie taglie. Impianto di riscaldamento comune con conteggiatura differenziata secondo consumo proprio. In esclusiva di vendita disponibili presso la Residenceimmo di Bolzano. Il Complesso residenziale "Central District". Ci occupiamo di Lei, ResidenceImmo è la Sua agenzia immobiliare. www.residenceimmo.it<br> ***<br> BOZEN - CENTRAL DISTRICT - Neubau 2-Zimmer Wohnung mit Terrasse in Klima-haus "A" Bauweise in sehr zentraler Lage in Bozen, in angenehmen, gepflegten Umfeld, projektiert um mit den Bewohnern und deren Werten mitzuwachsen. In sehr zentraler Lage in Bozen, in hervorragender Bauqualität, nach neuesten Baustandards Klimahaus "A" für niedrigen Energiebedarf sei es im Sommer als auch im Winter und optimales Wohnklima für das Wohlbefinden der Einwohner erdacht. Die Schnitte und Ausführungsdetails sind sehr durchdacht und umfassen unter anderem Folgendes: Fußbodenheizung, Fenster mit schallgedämmter Verglasung, Beschattung mittels elektrischen Rollos, Holzböden in den Zimmern, Keramik für Küche und Bäder, zentrale TV- und Satellitenanlage, Video-Gegensprechanlage, Wasseranschluss im Garten und auf den Terrassen, Sicherheitstüren, kontrollierte Raumluft mit Wärmerückgewinnung und Sommerauffrischung, Aufzug etc. Jede Wohnung wird inclusive einem Keller und übergeben und jedenfalls ist auch für jede Wohnung eine oder mehrere geschlossene Garage/n verschiedener Größen in der Tiefgarage verfügbar. Gemeinsame Heizanlage mit individueller Ablesung. Im ExclusivVerkauf verfügbar bei ResidenceImmo in Bozen. Wir kümmern uns um Sie, ResidenceImmo ist Ihre Immobilienagentur. www.residenceimmo.it




1/10
Appartamento di 74 mq a Renon - Ritten
Soprabolzano
295.000 €
Questo accogliente bilocale si trova al piano seminterrato di una curata palazzina a Renon/Soprabolzano e colpisce per la sua terrazza soleggiata con splendida vista panoramica sull’altopiano del Renon e sulle Dolomiti.<br><br>La superficie abitabile è composta da un luminoso soggiorno con accesso alla terrazza, una camera da letto, una cucina separata e un bagno con vasca. Una tradizionale stufa in maiolica offre un’atmosfera calda e accogliente, mentre l’impianto di ricircolo dell’aria, le tapparelle elettriche e il riscaldamento centralizzato tramite la centrale termica di Collalbo garantiscono il comfort moderno.<br><br>I pavimenti sono in legno di qualità nella zona giorno e notte, mentre in cucina, bagno e ingresso sono presenti piastrelle in ceramica.<br><br>Un posto auto coperto al piano terra è disponibile separatamente al prezzo di 15.000 €.<br><br>La posizione tranquilla a Soprabolzano, la vicinanza a passeggiate e sentieri escursionistici e l’ottimo collegamento con la funivia del Renon rendono questa proprietà la combinazione ideale tra relax, natura e comodità di collegamenti.<br><br><br>Ubicazione e contesto di questo Immobile:<br><br>L’immobile si trova a Soprabolzano, una delle località più conosciute del Renon, situata a circa 1.200 metri di altitudine sopra Bolzano. Da sempre apprezzata come luogo di villeggiatura e residenza, la zona convince per il clima salutare, l’ampio panorama sulle Dolomiti e l’elevata qualità abitativa e ricreativa.<br><br>Particolarmente apprezzato è il collegamento diretto con Bolzano tramite la funivia del Renon, che permette di raggiungere il centro città in pochi minuti – ideale anche per chi lavora a Bolzano e non dispone di un’auto. Nel centro del paese si trovano negozi di prima necessità, bar, ristoranti e vari servizi, oltre a numerosi sentieri e percorsi escursionistici che partono direttamente dall’abitato.<br><br>Soprabolzano unisce la tranquillità di un contesto naturale con la rapida accessibilità alla città, risultando una scelta abitativa attraente per chi cerca natura, comodità e qualità della vita.<br><br><br>Compenso di mediazione:<br><br>Il mediatore ha diritto alla provvigione, se l'affare è concluso per effetto del suo intervento.<br><br>Provvigione del 3 % (tre per cento) più IVA sul prezzo di Vendita.<br><br>Il diritto del mediatore al compenso sorge nel momento in cui l'affare è concluso e verra' corrisposto dall'acquirente al mediatore entro 30 giorni dalla data di accettazione della proposta di acquisto oppure dalla sottoscrizione del contratto preliminare.<br><br>Il nostro intento è di mettere a disposizione sul presente sito internet informazioni corrette e complete. Tuttavia non assumiamo nessuna responsabilità ne diamo garanzia per l'attualità, la correttezza e la completezza delle informazioni fornite. Planimetrie bidimensionali e rendering tridimensionali sono meramente figurative e non sempre in rapporto e/o veritiere. Ci riserviamo il diritto di effettuare senza preavviso delle modifiche o integrazioni alle informazioni fornite.




1/13
Appartamento di 110 mq a Castel Ivano
Castel Ivano
480.000 €
CASTEL IVANO - ID_A-405, sole 3 unità:, vendiamo VILLA A SCHIERA di TESTA DI PROSSIMA REALIZZAZIONE IN CLASSE A+ con esposizione nord-sud-ovest, disposto su due livelli di 55 MQ commerciali ciascuno: Al piano terra SOGGIORNO, con CUCINA a vista ed accesso all'area esterna/giardino (144 MQ), BAGNO FINESTRATO con doccia. Al piano Primo Zona notte con 3 CAMERE di cui 1 MATRIMONIALE e 2 DOPPIE (12MQ.), disimpegno notte, SECONDO BAGNO FINESTRATO. Garage e cantina inclusi (35MQ)<br><br>RISCALDAMENTO e raffrescamento CENTRALIZZATI A CONSUMO, pompa di calore, VENTILAZIONE meccanica, TRIPLI VETRI, elevata classe ACUSTICA. FOTOVOLTAICO.<br><br>Per ulteriori informazioni e sopralluogo:<br>BROKER PERSONAL RE ® - Angelo Graziano Cell. 334 336 54 25<br><br>A.P.E. "A+‘’ - EPgl: "-” KWm2a<br>Euro 480.000 - ID_A-405<br><br>Possibilita' MUTUO 100%<br>Consulenza Family Broker Finanziario GRATUITA!<br><br>PERSONAL RE ® - Consulenza Immobiliare + Home Staging<br>info@personalre.it | www.personalre.it | @personalre<br>TRENTO | Via Galileo Galilei 9-11 | TN<br>BOLZANO | Via Carducci 13 A | BZ<br>PERGINE VALSUGANA | Viale Venezia 11 | TN<br>VALLE LAGHI - CAVEDINE | Viale Degasperi 12 | TN




1/14
Bolzano - 3 stanze + cottura
455.000 €
VIA VISITAZIONE In zona interna e tranquilla proponiamo splendido trilocale ristrutturato a nuovo recentemente composto da ingresso, ampio soggiorno con zona cottura, 2 stanze da letto, doppio servizio, 2 balconi, cantina e posto auto conominiale assegnato. Libero su accordo



1/11
Appartamento di 67 mq a Bolzano - Bozen
Centro Città
295.000 €
BOLZANO - CENTRAL DISTRICT- in vendita bilocale nuovo con giardino in casa-clima "A" in posizione molto centrale in un contesto molto curato, destinato a guadagnare di valore con le persone che ne abitano nel tempo. In zona servita di Bolzano, viene proposto in ottima qualità costruttiva secondo le regole casa-clima "A" per ottime prestazioni energetiche sia invernale che estive e benessere degli inquilini. I tagli e le finiture sono molto ben studiate e tra l'altro comprendono quanto segue: riscaldamento a pavimento, finestre insonorozzate con tapparelle elettriche, pavimenti in legno nelle stanze e ceramica in cucina e nei bagni, impianto tv e satellitare condominiale, videocitofono, acqua in giardino e sui terrazzi, porte di sicurezza esterne e per ogni appartamento, ventilazione controllata con recupero del calore, e sistema di raffrescamento estivo, ascensore ecc. Ogni appartamento è compreso di cantina e sono disponibili box garage di varie taglie. Impianto di riscaldamento comune con conteggiatura differenziata secondo consumo proprio. In esclusiva di vendita disponibili presso la Residenceimmo di Bolzano. Il Complesso residenziale "Central District". Ci occupiamo di Lei, ResidenceImmo è la Sua agenzia immobiliare. www.residenceimmo.it<br> ***<br> BOZEN - CENTRAL DISTRICT - Neubau 2-Zimmer Wohnung mit Garten in Klima-haus "A" Bauweise in sehr zentraler Lage in Bozen, in angenehmen, gepflegten Umfeld, projektiert um mit den Bewohnern und deren Werten mitzuwachsen. In sehr zentraler Lage in Bozen, in hervorragender Bauqualität, nach neuesten Baustandards Klimahaus "A" für niedrigen Energiebedarf sei es im Sommer als auch im Winter und optimales Wohnklima für das Wohlbefinden der Einwohner erdacht. Die Schnitte und Ausführungsdetails sind sehr durchdacht und umfassen unter anderem Folgendes: Fußbodenheizung, Fenster mit schallgedämmter Verglasung, Beschattung mittels elektrischen Rollos, Holzböden in den Zimmern, Keramik für Küche und Bäder, zentrale TV- und Satellitenanlage, Video-Gegensprechanlage, Wasseranschluss im Garten und auf den Terrassen, Sicherheitstüren, kontrollierte Raumluft mit Wärmerückgewinnung und Sommerauffrischung, Aufzug etc. Jede Wohnung wird inclusive einem Keller und übergeben und jedenfalls ist auch für jede Wohnung eine oder mehrere geschlossene Garage/n verschiedener Größen in der Tiefgarage verfügbar. Gemeinsame Heizanlage mit individueller Ablesung. Im Exclusiv Verkauf verfügbar bei ResidenceImmo in Bozen. Wir kümmern uns um Sie, ResidenceImmo ist Ihre Immobilienagentur. www.residenceimmo.it







Chiedi agli agenti immobiliari esperti della regione Trentino Alto Adige
Chiedi agli agenti immobiliari della regione Trentino Alto Adige quali sono gli immobili che potrebbero soddisfare al meglio le tue richieste.